Scandinavia powstaje w otoczeniu łąk i niskiej zabudowy jednorodzinnej, co zapewnia ciszę, przestrzeń i kameralny charakter. Krótki spacer dzieli mieszkańców od Łąk Klimontowskich – rozległego terenu idealnego na wyjścia z psem, bieganie, jazdę na rowerze czy aktywności z dziećmi.
W najbliższej okolicy znajduje się również pełna infrastruktura potrzebna na co dzień: szkoła i przedszkola, sklepy, punkty usługowe, paczkomaty, a także przychodnia i stacja paliw. Miłośnicy sportu i rekreacji docenią bliskość Zagłębiowskiego Parku Sportowego oraz rozbudowaną sieć tras rowerowych prowadzących m.in. do Parku Środula, Parku Sieleckiego czy głównych części Sosnowca.
Scandinavia powstaje w otoczeniu łąk i niskiej zabudowy jednorodzinnej, co zapewnia ciszę, przestrzeń i kameralny charakter. Krótki spacer dzieli mieszkańców od Łąk Klimontowskich – rozległego terenu idealnego na wyjścia z psem, bieganie, jazdę na rowerze czy aktywności z dziećmi.Rozwiń ∨
Scandinavia to kameralne osiedle 28 domów w zabudowie bliźniaczej i szeregowej, zaprojektowane w tarasowym układzie, wpisanym w naturalny spadek terenu, jako spójna, harmonijna całość, inspirowana estetyką północnej Europy. Proste, geometryczne bryły, jasne elewacje w odcieniu kości słoniowej, grafitowe dachy, naturalne drewno oraz duże przeszklenia tworzą ponadczasową kompozycję, w której kluczową rolę odgrywają światło i proporcje.
Rozwiń ∨
Osiedle jest w pełni ogrodzone i zamknięte, z kontrolowanym wjazdem, starannie zaprojektowaną zielenią w nordyckim stylu oraz subtelnym oświetleniem i detalami małej architektury. Prywatne ogrody z tarasami stanowią naturalne przedłużenie strefy dziennej. Przy wjeździe na osiedle znajdują się garaże, a przy domach istnieje dodatkowo możliwość postawienia wiat garażowych – każdy z tych elementów nawiązuje do skandynawskiego designu osiedla. Zwiń ∧
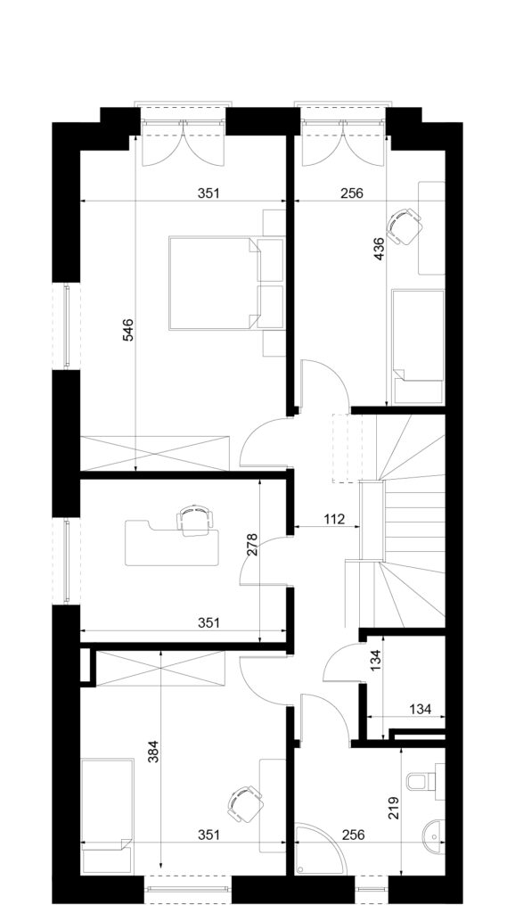
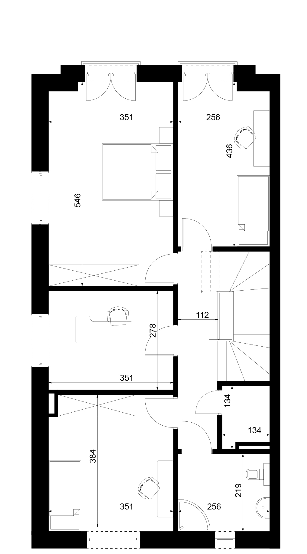
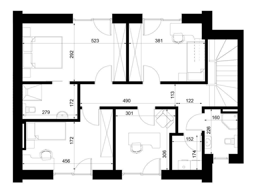
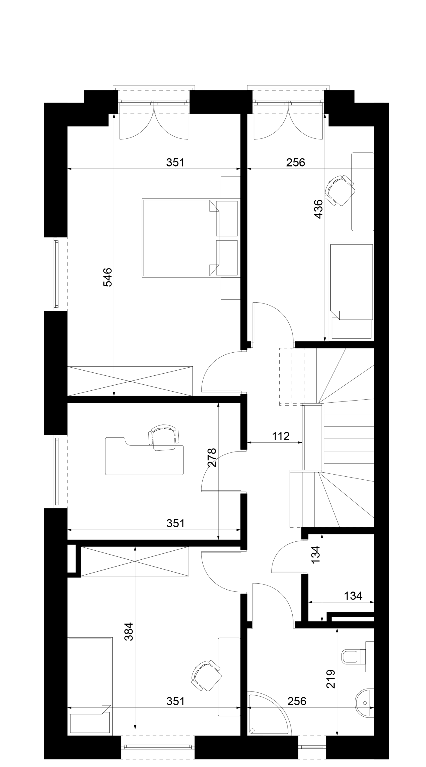
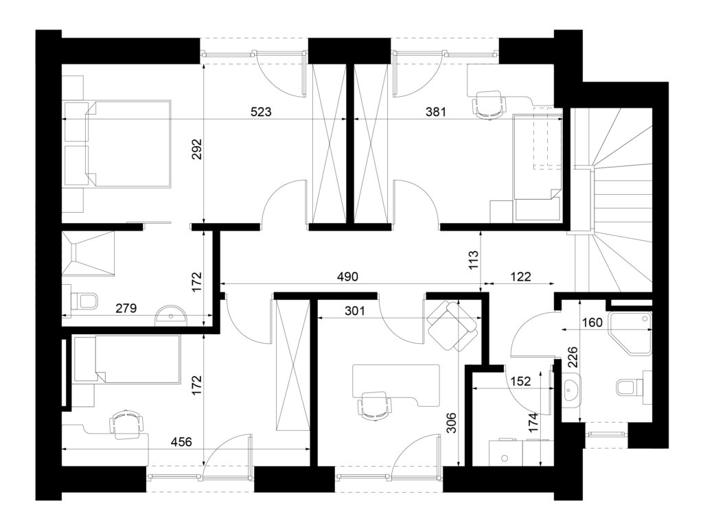
Domy oferują powierzchnie od 117 do 141 m² oraz dodatkowe poddasze o powierzchni 22-34 m², które można dowolnie zagospodarować, np. jako gabinet, strefę hobby, pokój rekreacyjny lub przestrzeń do przechowywania.
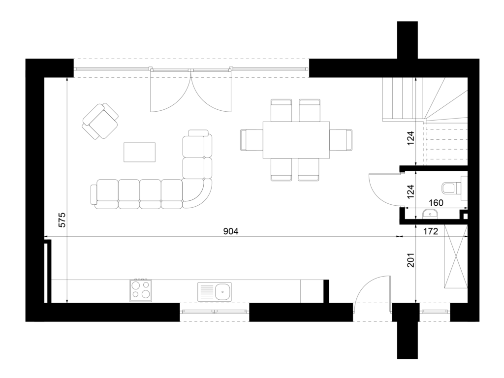
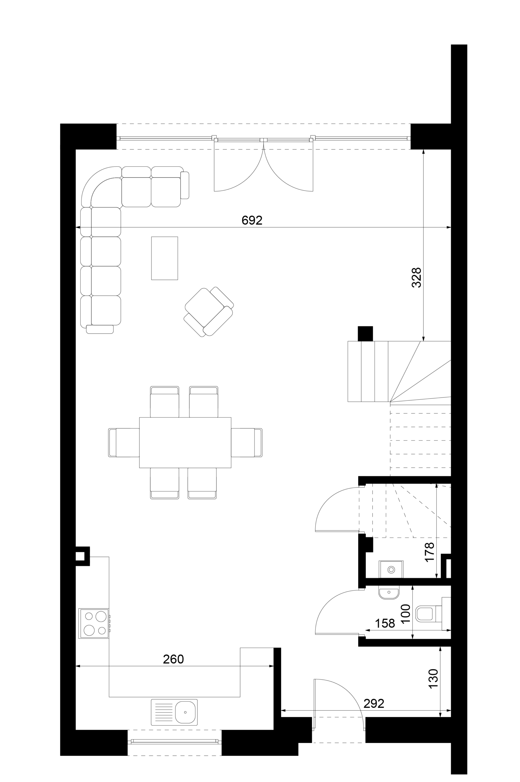
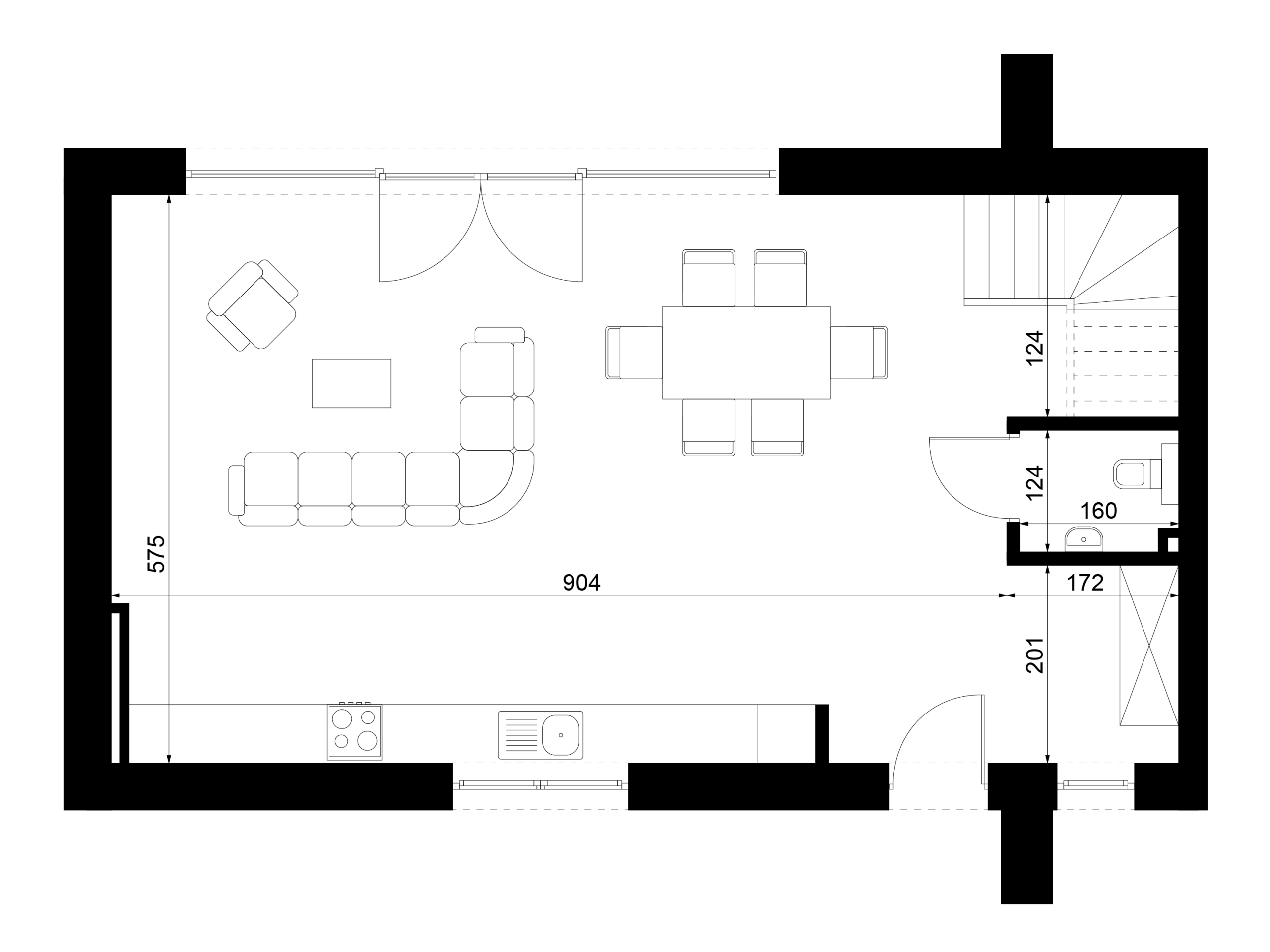
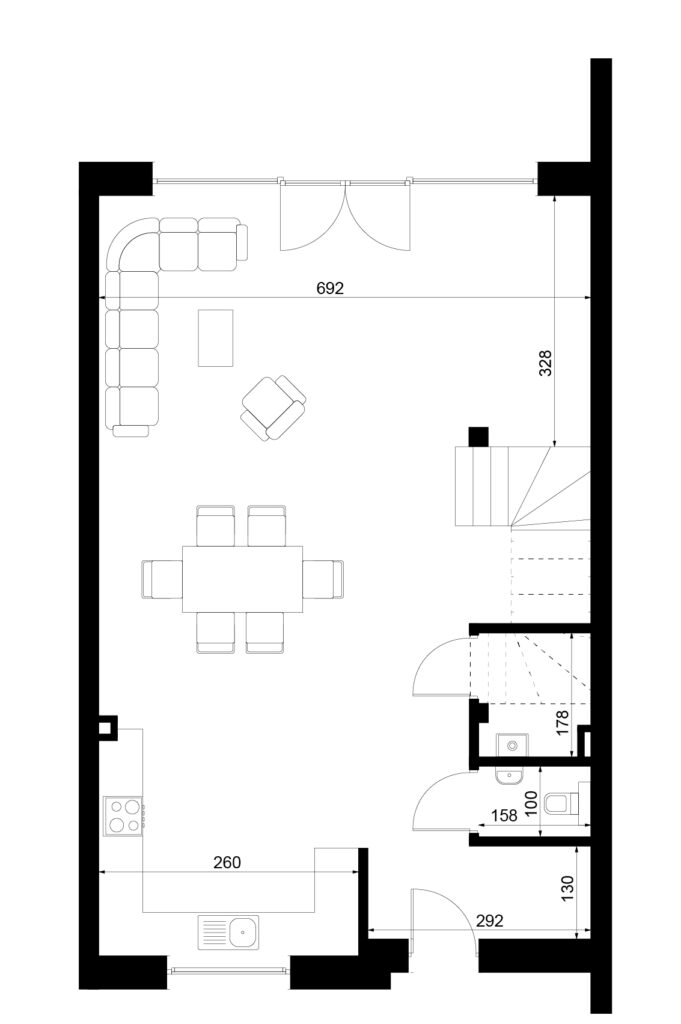
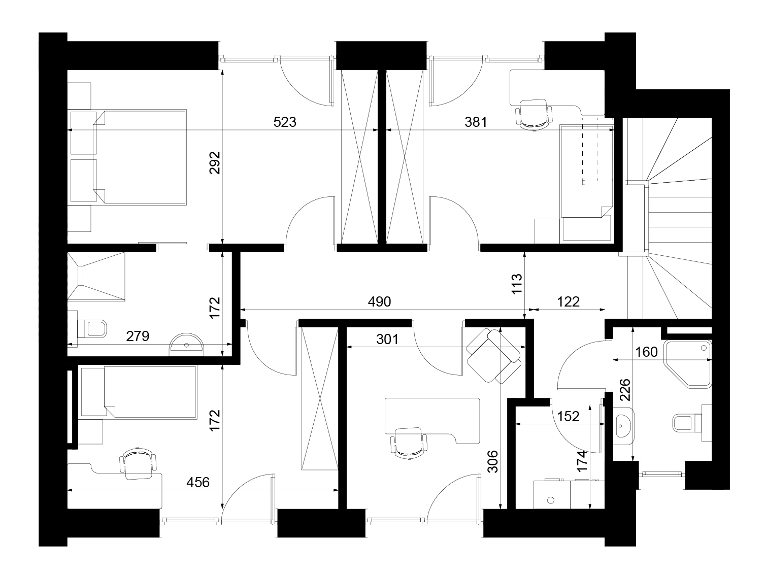
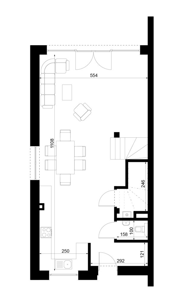
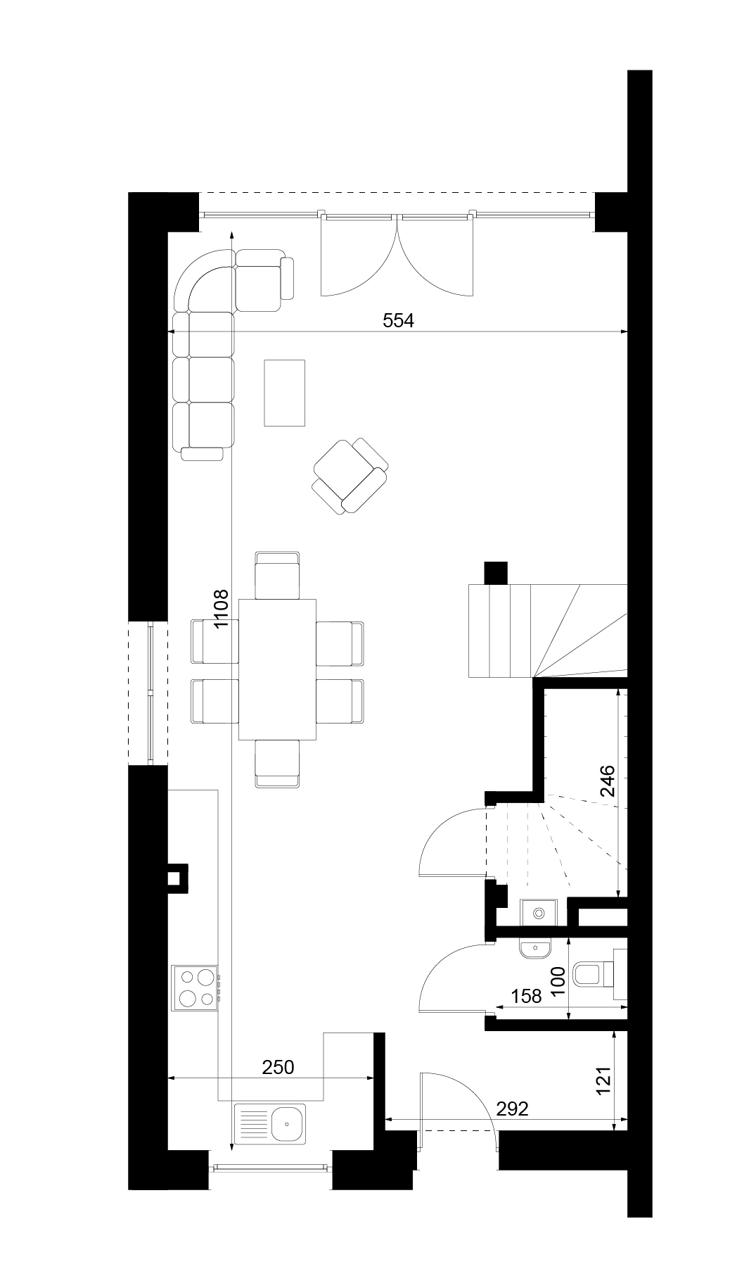
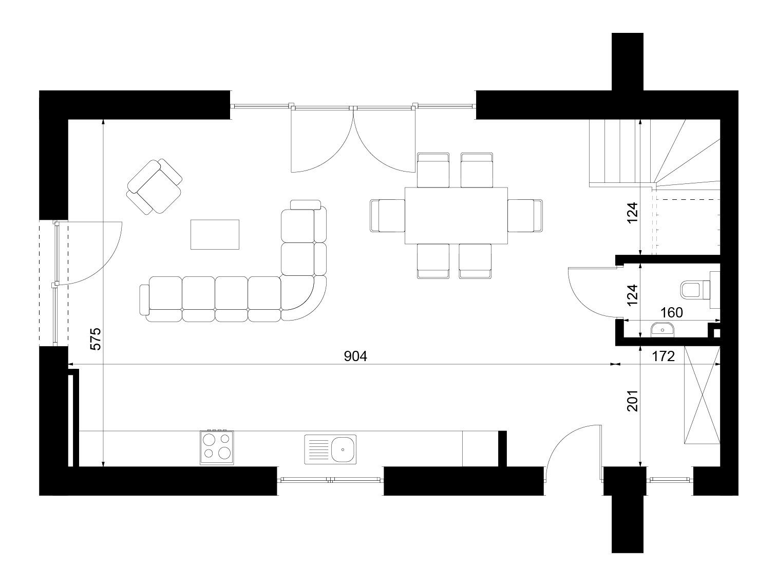
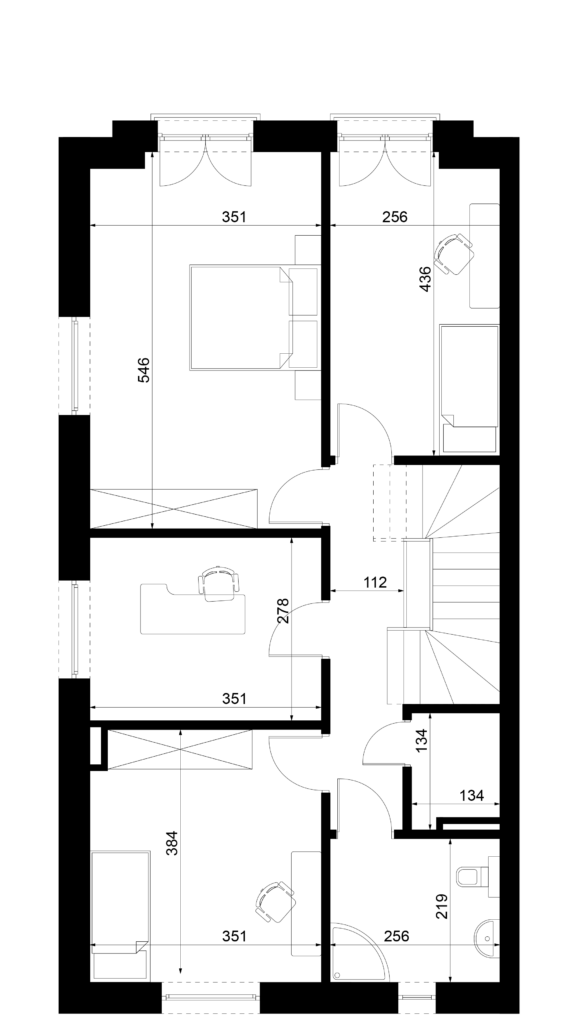
Kluczową ideą projektu jest możliwość kształtowania wnętrza „szytego na miarę” – zarówno układ parteru, jak i piętra może być dostosowany do indywidualnych oczekiwań mieszkańców. Otwarta strefa dzienna, ściany działowe na piętrze czy funkcje pomieszczeń mogą być modyfikowane w szerokim zakresie, przy zachowaniu stałych, zewnętrznych ram architektonicznych budynku.Rozwiń ∨
Domy powstają w oparciu o nowoczesne technologie, które podnoszą komfort życia i pozwalają ograniczać koszty eksploatacji. Budynki można łatwo przystosować do montażu fotowoltaiki, pomp ciepła, rekuperacji oraz systemów smart home. W standardzie mają ogrzewanie podłogowe. Zastosowano stolarkę okienną o podwyższonej izolacyjności termicznej i akustycznej, która ogranicza straty ciepła i poprawia komfort akustyczny we wnętrzach. Zadbaliśmy również o wyciszenie pomieszczeń poprzez zastosowanie pustaków akustycznych między domami.
Scandinavia znajduje się w prestiżowej, zielonej dzielnicy Kukułek w Sosnowcu, oferując szybki i wygodny dojazd do najważniejszych punktów Górnośląsko-Zagłębiowskiej Metropolii. Centrum Sosnowca oddalone jest o ok. 10 minut, a Katowice o ok. 15 minut samochodem, co zapewnia łatwy dostęp do zaplecza biznesowego, edukacyjnego i kulturalnego regionu.
Rozwiń ∨
| Nr.Numer | Typ | PtPiętro | Pok.Pokoje | Pow..Pow. | DziałkaDziałka | ExtraDziałka | BudynekBudynek | DostępnośćDostępność | Ceny domów w stanie surowym zamkniętym | Dopłata do stanu deweloperskiego | Kontakt | Plan | Wirtualny | |
|---|---|---|---|---|---|---|---|---|---|---|---|---|---|---|
| 1 | NORD LINE | 0,1 | 5 | 156,11m2 | 290,00m2 | Ogród | 1 | Etap II | -- | 100000 |
NR:
Nr:
1
Typ:
NORD LINE
Pow.:
Pow.:
156,11m2
Działka:
290,00m2
Etap II
--
|
|||
| 2 | NORD LINE | 0,1 | 5 | 156,11m2 | 218,00m2 | Ogród | 2 | Etap II | -- | 100000 |
NR:
Nr:
2
Typ:
NORD LINE
Pow.:
Pow.:
156,11m2
Działka:
218,00m2
Etap II
--
|
|||
| 3 | NORD LINE | 0,1 | 5 | 156,11m2 | 217,00m2 | Ogród | 3 | Etap II | -- | 100000 |
NR:
Nr:
3
Typ:
NORD LINE
Pow.:
Pow.:
156,11m2
Działka:
217,00m2
Etap II
--
|
|||
| 4 | NORD LINE | 0,1 | 5 | 156,11m2 | 283,00m2 | Ogród | 4 | Etap II | -- | 100000 |
NR:
Nr:
4
Typ:
NORD LINE
Pow.:
Pow.:
156,11m2
Działka:
283,00m2
Etap II
--
|
|||
| 5 | SOLHEIM 117 | 0,1 | 5 | 139,30m2 | 282,00m2 | Ogród | 5 | Etap II | -- | 100000 |
NR:
Nr:
5
Typ:
SOLHEIM 117
Pow.:
Pow.:
139,30m2
Działka:
282,00m2
Etap II
--
|
|||
| 6 | SOLHEIM 117 | 0,1 | 4 | 139,30m2 | 192,00m2 | Ogród | 6 | Etap II | -- | 100000 |
NR:
Nr:
6
Typ:
SOLHEIM 117
Pow.:
Pow.:
139,30m2
Działka:
192,00m2
Etap II
--
|
|||
| 7 | SOLHEIM 117 | 0,1 | 4 | 139,30m2 | 311,00m2 | Ogród | 7 | Etap II | -- | 100000 |
NR:
Nr:
7
Typ:
SOLHEIM 117
Pow.:
Pow.:
139,30m2
Działka:
311,00m2
Etap II
--
|
|||
| 8 | SOLHEIM 117 | 0,1 | 4 | 139,30m2 | 186,00m2 | Ogród | 8 | Etap II | -- | 100000 |
NR:
Nr:
8
Typ:
SOLHEIM 117
Pow.:
Pow.:
139,30m2
Działka:
186,00m2
Etap II
--
|
|||
| 9 | NORD LINE | 0,1 | 5 | 156,11m2 | 297,00m2 | Ogród | 9 | Sprzedane | -- | 100000 |
NR:
Nr:
9
Typ:
NORD LINE
Pow.:
Pow.:
156,11m2
Działka:
297,00m2
Sprzedane
--
|
|||
| 10 | NORD LINE | 0,1 | 5 | 156,11m2 | 218,00m2 | Ogród | 10 | Dostępne | 729 000,00 zł
4 669,78 zł/m2 |
100000 |
NR:
Nr:
10
Typ:
NORD LINE
Pow.:
Pow.:
156,11m2
Działka:
218,00m2
Dostępne
729 000,00 zł
4 669,78 zł/m2 |
|||
| 11 | NORD LINE | 0,1 | 5 | 156,11m2 | 217,00m2 | Ogród | 11 | Sprzedane | -- | 100000 |
NR:
Nr:
11
Typ:
NORD LINE
Pow.:
Pow.:
156,11m2
Działka:
217,00m2
Sprzedane
--
|
|||
| 12 | NORD LINE | 0,1 | 5 | 156,11m2 | 283,00m2 | Ogród | 12 | Rezerwacja | -- | 100000 |
NR:
Nr:
12
Typ:
NORD LINE
Pow.:
Pow.:
156,11m2
Działka:
283,00m2
Rezerwacja
--
|
|||
| 13 | NORD LINE | 0,1 | 5 | 156,11m2 | 287,00m2 | Ogród | 13 | Rezerwacja | -- | 100000 |
NR:
Nr:
13
Typ:
NORD LINE
Pow.:
Pow.:
156,11m2
Działka:
287,00m2
Rezerwacja
--
|
|||
| 14 | NORD LINE | 0,1 | 5 | 156,11m2 | 213,00m2 | Ogród | 14 | Dostępne | 729 000,00 zł
4 669,78 zł/m2 |
100000 |
NR:
Nr:
14
Typ:
NORD LINE
Pow.:
Pow.:
156,11m2
Działka:
213,00m2
Dostępne
729 000,00 zł
4 669,78 zł/m2 |
|||
| 15 | NORD LINE | 0,1 | 5 | 156,11m2 | 212,00m2 | Ogród | 15 | Dostępne | 729 000,00 zł
4 669,78 zł/m2 |
100000 |
NR:
Nr:
15
Typ:
NORD LINE
Pow.:
Pow.:
156,11m2
Działka:
212,00m2
Dostępne
729 000,00 zł
4 669,78 zł/m2 |
|||
| 16 | NORD LINE | 0,1 | 5 | 156,11m2 | 306,00m2 | Ogród | 16 | Sprzedane | -- | 100000 |
NR:
Nr:
16
Typ:
NORD LINE
Pow.:
Pow.:
156,11m2
Działka:
306,00m2
Sprzedane
--
|
|||
| 17 | SOLHEIM 120 | 0,1 | 4 | 148,38m2 | 356,00m2 | Ogród | 17 | Rezerwacja | -- | 100000 |
NR:
Nr:
17
Typ:
SOLHEIM 120
Pow.:
Pow.:
148,38m2
Działka:
356,00m2
Rezerwacja
--
|
|||
| 18 | SOLHEIM 120 | 0,1 | 4 | 148,38m2 | 165,00m2 | Ogród | 18 | Dostępne | 689 000,00 zł
4 643,48 zł/m2 |
100000 |
NR:
Nr:
18
Typ:
SOLHEIM 120
Pow.:
Pow.:
148,38m2
Działka:
165,00m2
Dostępne
689 000,00 zł
4 643,48 zł/m2 |
|||
| 19 | SOLHEIM 135 | 0,1 | 4 | 173,63m2 | 200,00m2 | Ogród | 19 | Etap II | -- | 100000 |
NR:
Nr:
19
Typ:
SOLHEIM 135
Pow.:
Pow.:
173,63m2
Działka:
200,00m2
Etap II
--
|
|||
| 20 | SOLHEIM 135 | 0,1 | 4 | 173,63m2 | 200,00m2 | Ogród | 20 | Etap II | -- | 100000 |
NR:
Nr:
20
Typ:
SOLHEIM 135
Pow.:
Pow.:
173,63m2
Działka:
200,00m2
Etap II
--
|
|||
| 21 | SOLHEIM 120 | 0,1 | 4 | 148,38m2 | 165,00m2 | Ogród | 21 | Etap II | -- | 100000 |
NR:
Nr:
21
Typ:
SOLHEIM 120
Pow.:
Pow.:
148,38m2
Działka:
165,00m2
Etap II
--
|
|||
| 22 | SOLHEIM 120 | 0,1 | 4 | 148,38m2 | 265,00m2 | Ogród | 22 | Etap II | -- | 100000 |
NR:
Nr:
22
Typ:
SOLHEIM 120
Pow.:
Pow.:
148,38m2
Działka:
265,00m2
Etap II
--
|
|||
| 23 | SOLHEIM 120 | 0,1 | 4 | 148,38m2 | 336,00m2 | Ogród | 23 | Sprzedane | -- | 100000 |
NR:
Nr:
23
Typ:
SOLHEIM 120
Pow.:
Pow.:
148,38m2
Działka:
336,00m2
Sprzedane
--
|
|||
| 24 | SOLHEIM 120 | 0,1 | 4 | 148,38m2 | 170,00m2 | Ogród | 24 | Dostępne | 679 000,00 zł
4 576,09 zł/m2 |
100000 |
NR:
Nr:
24
Typ:
SOLHEIM 120
Pow.:
Pow.:
148,38m2
Działka:
170,00m2
Dostępne
679 000,00 zł
4 576,09 zł/m2 |
|||
| 25 | SOLHEIM 120 | 0,1 | 4 | 148,38m2 | 170,00m2 | Ogród | 25 | Dostępne | 689 000,00 zł
4 643,48 zł/m2 |
100000 |
NR:
Nr:
25
Typ:
SOLHEIM 120
Pow.:
Pow.:
148,38m2
Działka:
170,00m2
Dostępne
689 000,00 zł
4 643,48 zł/m2 |
|||
| 26 | SOLHEIM 120 | 0,1 | 4 | 148,38m2 | 336,00m2 | Ogród | 26 | Rezerwacja | -- | 100000 |
NR:
Nr:
26
Typ:
SOLHEIM 120
Pow.:
Pow.:
148,38m2
Działka:
336,00m2
Rezerwacja
--
|
|||
| 27 | SOLHEIM 141 | 0,1 | 5 | 175,17m2 | 336,00m2 | Ogród | 27 | Dostępne | 799 000,00 zł
4 561,28 zł/m2 |
100000 |
NR:
Nr:
27
Typ:
SOLHEIM 141
Pow.:
Pow.:
175,17m2
Działka:
336,00m2
Dostępne
799 000,00 zł
4 561,28 zł/m2 |
|||
| 28 | SOLHEIM 141 | 0,1 | 5 | 175,17m2 | 336,00m2 | Ogród | 28 | Sprzedane | -- | 100000 |
NR:
Nr:
28
Typ:
SOLHEIM 141
Pow.:
Pow.:
175,17m2
Działka:
336,00m2
Sprzedane
--
|
Proces zaczynamy od krótkiej rozmowy telefonicznej lub mailowej. Odpowiemy na wszystkie pytania i umówimy wygodny termin wizyty na terenie inwestycji.
Podczas spotkania obejrzysz domy, otrzymasz komplet dokumentów oraz omówimy najważniejsze kwestie: standard, harmonogram, możliwe warianty wykończenia oraz zakres zmian projektowych.
W zależności od Twojej sytuacji możemy rozpocząć od krótkiej umowy rezerwacyjnej (14 dni) albo przejść bezpośrednio do umowy przedwstępnej notarialnej. Na tym etapie ustalamy również ewentualne zmiany projektowe i funkcjonalne.
Po wpłacie pozostałej części ceny podpisujemy akt notarialny i przekazujemy klucze do domu.
Na życzenie możemy polecić współpracujących z nami projektantów i wykonawców wnętrz – w tym Attimo Design – abyś mógł płynnie przejść od zakupu do urządzenia gotowego domu.
Miejsce inwestycji:
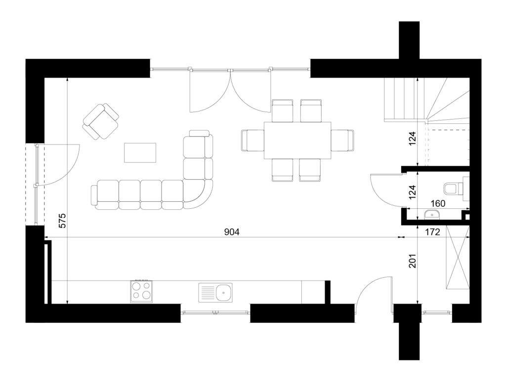
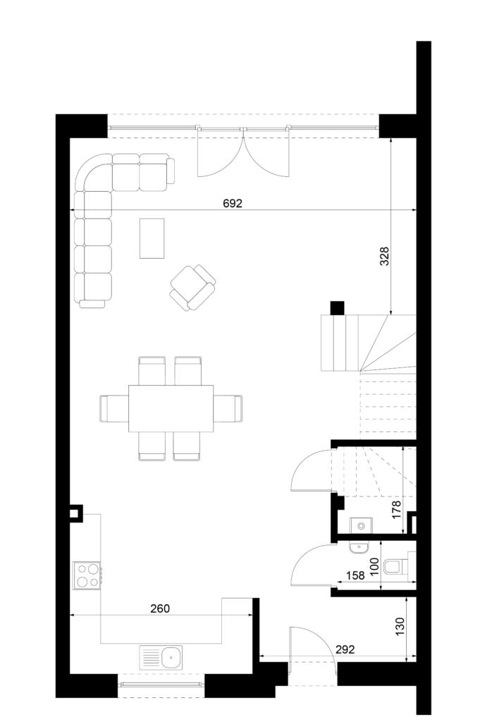
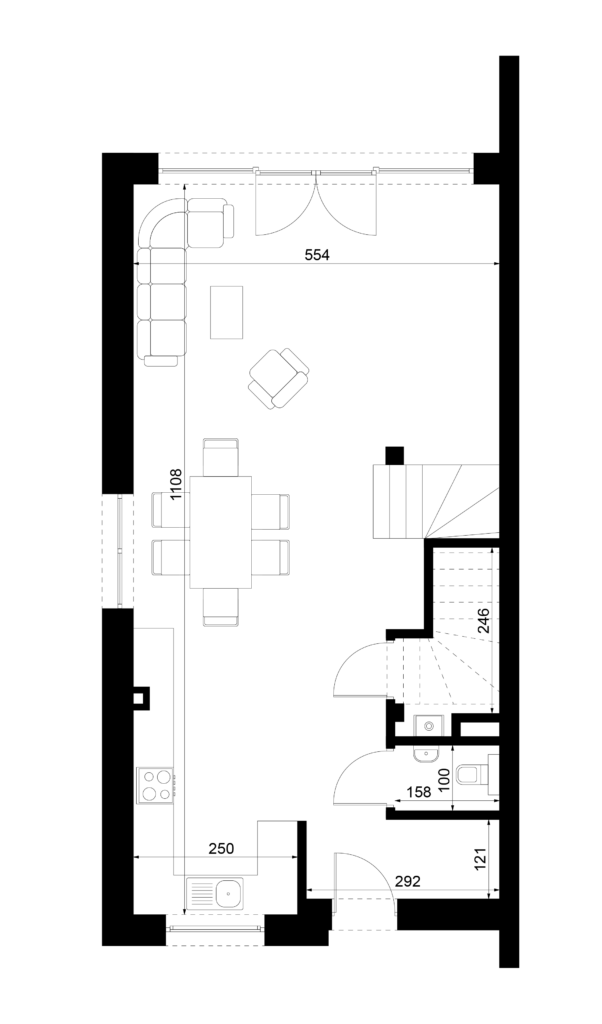
W Scandinavii nie oferujemy sztywnego, zamkniętego układu wnętrz, ale zapewniamy realną możliwość zaprojektowania domu pod konkretne potrzeby mieszkańców. Zarówno strefa dzienna typu open space, jak i układ pomieszczeń na piętrze mogą być swobodnie kształtowane: zmieniane są funkcje pokoi, lokalizacja ścian działowych, wielkość i proporcje przestrzeni, a nawet rozmieszczenie i wymiary przeszkleń. Stałym elementem pozostają jedynie ściany zewnętrzne, natomiast wnętrze może zostać zaprojektowane od podstaw pod indywidualny styl życia – od otwartej, loftowej przestrzeni po bardziej klasyczny, podzielony układ.Rozwiń ∨
Od ponad 20 lat realizujemy inwestycje mieszkaniowe – od kameralnych osiedli po większe projekty wielorodzinne. W najbliższej okolicy zbudowaliśmy m.in. osiedla domów jednorodzinnych: Zielona Dolina, Góralska, Słoneczne oraz Apartamenty Słoneczne, a także Cisową Aleję – inwestycję bezpośrednio sąsiadującą ze Scandinavią.
Jesteśmy firmą rodzinną, w której łączymy doświadczenie z rynku nieruchomości z kompetencjami z obszaru inwestycji, finansów, architektury i marketingu. Jeden z kluczowych członków naszego zespołu jest historykiem sztuki, co pozwala nam projektować osiedla w sposób świadomy, czerpiąc inspiracje z najlepszych światowych realizacji i przekładając je na lokalny kontekst.
Działamy też jako generalny wykonawca naszych projektów i realizujemy całą inwestycję z wykorzystaniem własnego kapitału. Dzięki temu mamy nieporównywalnie większą kontrolę jakości na każdym etapie – od projektu, przez wykonawstwo, po wykończenie terenów wspólnych. Samofinansowanie zapewnia stabilność i pełną przewidywalność procesu budowlanego, a dla naszych klientów oznacza bezpieczeństwo inwestycji i pewność jej terminowego ukończenia – niezależnie od zmieniających się warunków rynkowych.
Naszym celem jest tworzenie miejsc do życia, które są estetyczne, trwałe i funkcjonalne – zgodnie z filozofią nowoczesnej, skandynawskiej prostoty.

